フォレストクリエオーレ朝日町アネックス 201
賃料95,000/ 管理費 5,000円
- 敷
 - なし
 - 礼
 - 1ヶ月
 - 保証金
 - なし
 - 償却・敷引
 - なし
 



















※写真は同一タイプの場合がございます。
現況を優先いたします。
| 住所 | 大阪府門真市朝日町17-1 | 
|---|---|
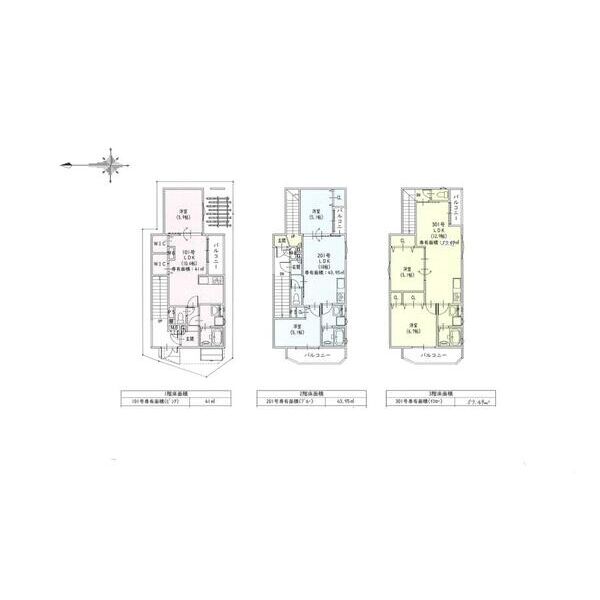
| 間取り | 2LDK | 
| 構造 | 木造 / 地上3階建 / 2階部分 | 
| 取扱店舗 | 大阪北支店 | 
| 面積 | 43.95㎡ | 
|---|---|
| 開口 | 南 | 
| 交通 | 
                    京阪本線「萱島」徒歩7分 京阪本線「大和田」徒歩9分 谷町線「大日」徒歩40分  | 
                  
設備等
ペット相談可
IHコンロ
コンロ2口以上
浴室乾燥機
洗浄便座
追い焚き
バス・トイレ別
エアコン
無料
インターネット
モニター付き
ドアフォン
駐輪場
都市ガス
バルコニー
2階以上
独立洗面台
アクセス
京阪本線「萱島」徒歩7分
京阪本線「大和田」徒歩9分
谷町線「大日」徒歩40分
保証人代行 必須 (エポス:初回保証料:月額賃料等の80%(最低保証料1.5万円) 継続保証料:月額賃料等の1.5%/月)
閑静な住宅街・お勧め物件
3点給湯・シャッター雨戸・シャワー・楽器不可・ルームシェア不可・洗面所独立・全室フローリング・追焚・単身者可・浴室乾燥機・インターネット CATV・コンロ設置済み・ペットについて: 室内小型犬、猫いずれか1匹まで・楽器について: 不可・エアコン・連帯保証人について: エポスカード
物件概要
| 住所 | 大阪府門真市朝日町17-1 | 
|---|---|
| 賃料(管理費等) | 95,000円 (5,000円) | 
| 敷金(保証金) / 礼金(敷引・償却金)  | 
                  
                  なし (なし) /  1ヶ月 (なし)  | 
                
| 更新料 | 1ヶ月 | 
| その他費用 | 
                                    退室料 49,500円(退去時) 鍵交換代 16,500円(契約時) 町会費/すまいサポート24 1,400円(月額) 保険要加入 2年契約 22,000円(エポス少額短期保険)  | 
                
| 間取り | 2LDK | 
| 専有面積 | 43.95㎡ | 
| 種別 | アパート | 
| 構造 | 木造 / 地上3階建 / 2階部分 | 
| 築年月 | 2023年09月 | 
| 開口 | 南 | 
| 交通 | 
                  京阪本線「萱島」徒歩7分 京阪本線「大和田」徒歩9分 谷町線「大日」徒歩40分  | 
                
| 駐車場 | |
| 入居可能日 | 相談 | 
| 契約種類 | 普通借家 2年 | 
| 取引態様 | 貸主 | 
| その他 | 
                  WiFi無料/防犯カメラ/町会費/短期違約/鍵交換代/
ペット犬猫相談可猫賃料増額洗浄費追加/更新料/退去時HC代
WiFi無料!設備充実の2LDK! オートロック付き! ・防犯カメラ付き! ・無料インターネット付き! ・宅配BOX付き! ・ペット飼育可能! 保証人代行 必須 (エポス:初回保証料:月額賃料等の80%(最低保証料1.5万円) 継続保証料:月額賃料等の1.5%/月) 閑静な住宅街・お勧め物件 3点給湯・シャッター雨戸・シャワー・楽器不可・ルームシェア不可・洗面所独立・全室フローリング・追焚・単身者可・浴室乾燥機・インターネット CATV・コンロ設置済み・ペットについて: 室内小型犬・猫いずれか1匹まで・楽器について: 不可・エアコン・連帯保証人について: エポスカード  | 
                
Contact usフォレストクリエオーレ朝日町アネックス 201の
お問い合わせ
Application
WEB入居申込み
この物件にWeb上からオンラインで入居お申込み手続きを行うことができます。
こちらのボタンからお申込みフォーム(別サイト)へ移動できます。
QRコードをスマートフォン等で読み取り、
Webお申込みフォームへ移動することも可能です。
※スマートフォン標準のQRコード読み取りアプリをご利用ください。
(標準外アプリの場合、正常に移動できないケースがあることを確認しています。)
Handling stores
取扱店舗
大阪北支店
営業時間:平日10:00~18:00 土日祝10:00~18:00
定休日:無休(年末年始・GWを除く)
TEL:06-7713-5577 FAX:06-7662-7036
お問い合わせの際に「フォレストクリエオーレ朝日町アネックス 201」とお伝えいただくとスムーズです。
条件の近い物件をチェック
※ 該当する物件がございません。
フォレストクリエオーレ朝日町アネックス 201(2階部分)
95,000
円| 所在地 | 大阪府門真市朝日町17-1 | ||
|---|---|---|---|
| 交通 | 
              京阪本線「萱島」徒歩7分 京阪本線「大和田」徒歩9分 谷町線「大日」徒歩40分  | 
            ||
| 建築構造 | 木造 地上3階建 総戸数3戸 | ||
| 間取りタイプ | 2LDK [LDK10・洋5.1帖・洋5.1帖] | ||
| 専有面積 | 43.95㎡ | 開口部方位 | 南 | 
| 築年月 | 2023年09月 | ||
| 現況/入居時期 | 退去予定 / 相談 | ||
| 賃料 | 95,000円 | ||
| 共益費・管理費 | 5,000円 | ||
| 敷金 | なし | 礼金 | 1ヶ月 | 
| 保証金 | なし | 償却・敷引 | なし | 
| 更新料 | 1ヶ月 | 契約種類 | 
              普通借家契約  2年間  | 
            
| 町内会費 | |||
| 駐車場 | - | ||
| - | |||
| 備 考 | |||
| オートロック付き! ・防犯カメラ付き! ・無料インターネット付き! ・宅配BOX付き! ・ペット飼育可能!  保証人代行 必須 (エポス:初回保証料:月額賃料等の80%(最低保証料1.5万円) 継続保証料:月額賃料等の1.5%/月) 閑静な住宅街・お勧め物件 3点給湯・シャッター雨戸・シャワー・楽器不可・ルームシェア不可・洗面所独立・全室フローリング・追焚・単身者可・浴室乾燥機・インターネット CATV・コンロ設置済み・ペットについて: 室内小型犬、猫いずれか1匹まで・楽器について: 不可・エアコン・連帯保証人について: エポスカード  | 
            |||
| 設 備 | |||
| 【キッチン】給湯器・IHクッキングヒーター(3口以上)・システムキッチン【水廻り】風呂(ユニットバス)・トイレ(水洗)・浴室乾燥機・シャワートイレ・追い焚き・洗髪洗面化粧台・バス・トイレ別・洗濯機置場(室内)【冷暖房】エアコン【放送・通信】インターネット対応・ネット使用料不要【セキュリティ】インターホン(カメラ付き)【その他】自転車置場・電気・ガス(都市ガス)・水道(公営)・排水(公共下水)・バルコニー/ベランダ・24時間換気システム | |||
| 条 件 | |||
| 【条件】ペット相談・外国人契約可能・2人入居可能・子供可・保証会社利用必須 | |||


          
            WiFi無料/防犯カメラ/町会費/短期違約/鍵交換代/ ペット犬猫相談可猫賃料増額洗浄費追加/更新料/退去時HC代 WiFi無料!設備充実の2LDK!
出力日:2025/11/04 12:52:18 / 次回更新予定日:2025/11/18 ※掲載情報は随時更新される場合がございます。
Powered by RealNetPro co..ltd.